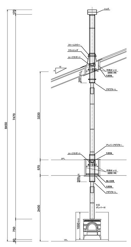
パイプ型2階建屋根抜き用 (2階床あり)
価格¥508,640-(税込)
応相談。お問合せください。
商品説明
1階に薪ストーブを設置し、2階の床を抜き、2階屋根に煙突を設置するプランです。屋外煙突色はステンレス色の他、黒耐熱焼付塗装もあります。
商品詳細
● 煙突部材のみの価格です。
● 炉台・ウォールプロテクターは別途です。
● ストーブ本体・施工費・梱包送料は別途です。
● 煙突単体購入も承っております。

煙突ご購入時に、ベストカラー、安心カラーをオプションでご購入いただきますと、10年間の雨漏り保証がつきます。煙突設置から10年の間に、万が一、屋根の煙突取付箇所から雨漏りが発生した場合、保険が適用され、家財として最大1,000万円まで補償されます。安心安全な煙突導入をご希望されるのであれば、是非このオプションをご購入ください。
「らくらくプラン」

パイプ型屋根抜き用煙突
+
ベストカラーまたは安心カラー
↓
雨漏り10年保証
煙突ご購入時の上記セットオプションご希望のお客様は、下記お問い合わせフォームの「ベストカラー、安心カラーオプション付」項目にて「有」にチェックください。御見積りさせていただきます。














