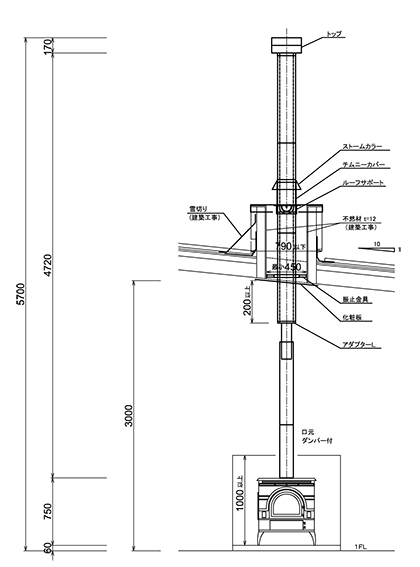
チムニー型1階建屋根抜き用
価格¥380,160-(税込)
応相談。お問合せください。
商品説明
工務店さまがカンタンに施工できる最適プランです。オリジナルチムニーで屋根雨仕舞がカンタンに。一度で施工できます。屋外煙突色はステンレス色の他、黒耐熱焼付塗装もあります。
商品詳細
● 煙突部材のみの価格です。
● 炉台・ウォールプロテクターは別途です。
● ストーブ本体・施工費・梱包送料は別途です。
● 煙突単体購入も承っております。
● 2Fの場合は室内煙突が増量になります。
【角煙道寸法について】
二重煙突の可燃物までの離隔距離はメーカー基準では 煙突芯より150mm以上を安全距離としています。
建築基準法上は225mm以上必要となりますので、ご注意ください。














