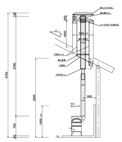
角トップ1階建屋根抜き用
価格¥351,670-(税込)
応相談。お問合せください。
商品説明
1階に薪ストーブを設置し、1階屋根に角トップ煙突を設置するプランです。煙突色は黒耐熱焼付塗装です。
商品詳細
● 煙突部材のみの価格です。
● 炉台・ウォールプロテクターは別途です。
● ストーブ本体・施工費・梱包送料は別途です。
● 煙突単体購入も承っております。
● 2Fの場合は室内煙突が増量になります。
【角煙道寸法について】
二重煙突の可燃物までの離隔距離はメーカー基準では煙突芯より150mm以上を安全距離としています。
建築基準法上は225mm以上必要となりますので、ご注意ください。
【角トップ】
→ 角トップ800
→ 角トップ650














